Nephrologisches Zentrum am Klinikum Süd, Lübeck
Wettbewerb
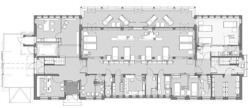
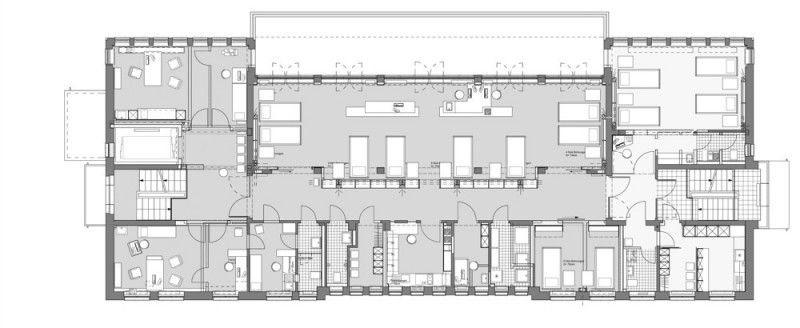
Das Dialysezentrum Lübeck ist als Schwerpunkt­dialyse mit 34 Betten auf vier Stationen, darunter zwei Isolier­stationen, nach neuesten Zertifizierungs­­kriterien konzipiert. Ein neues technologisches Nebengebäude beherbergt die Lagerhaltung und Wasser­­aufbereitungs­­anlagen. Eine Ambulanz für internistische und nephro­logische Patienten, psychologische Beratungsstelle und ein Seminar­bereich zur Fort- und Weiterbildung ergänzen das Raumprogramm.
Das ehemalige Klinikgebäude der Medizinischen Universität mit seinen großzügigen Balkonen, Treppen- und Fensteranlagen wurde 1937/38 errichtet.
Neben der denkmalgerechten Grund­instandsetzung und haustechnischer Erneuerung steht die Implantierung der dialysetechnischen Anlagen im Vordergrund. Eine 300 m lange in eingestellte Möbel integrierte Ringleitung erreicht jeden Behandlungs­platz. In eigens entwickelten Mediensäulen werden alle technischen Anschlüsse gebündelt.
Im Einklang mit historischer Bausubstanz wurde ein zeitgemäßes medizinisch speziali­siertes Zentrum geschaffen.
Das Besondere dieses Gebäudes ist der »atmosphärische Sanatoriums­charakter«, gewonnen durch die geschaffenen Raumpropotionen, verwendete Materialien und Lichtführung von außen und innen. Die Neubauteile (Lagergebäude mit Riglit verglast, die Verglasung des Treppenhauses und der Vorbau einer Loggia) kontrastieren mit dem historischen Gebäude.
Von der Architekten- und Ingenieurkammer für den Architektursommer 2002 ausgewählt.







